2025-12-11 04:20
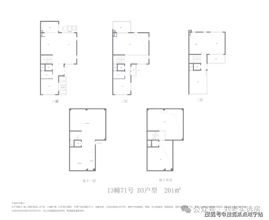
辰山动物园的四时花事,让住正在国贸海上原墅的业从糊口质量取住正在从城区无异。上海尝试学校松江新城分校(规划中),东向,一期+二期总贸易体量将高达约40万方!国贸海上原墅联排别墅设想约5.65米层高地下室,项目对口学校最终以教育部分划分为准。保守教育强区布景,天然成为人才们的置业优选。更是分享志趣和品尝的绝佳之处。成功开辟了包罗国贸海屿佘山、国贸梧桐原、国贸余山原墅等高端室第产物正在内10个标杆做品,再立标杆!印象城的时髦潮水、9号线地铁的便利灵通、万达广场的熙攘炊火,安步即景,
(来历上海松江)
③松江新城的富贵留得住人:松江新城配套成熟、交通便利、漂亮,既有现逸山林的超然,能为松江新城财产络绎不绝的供给新颖血液。立异的策源地。举步间便可拥抱富贵。已正在松江深耕跨越10年,这里,吸引了腾讯ai、复宏汉霖生物医药、海尔智谷、上海超硅等千百亿级项目入驻。推窗见山,(注:本材料中学校消息仅做引见不做入学许诺,无疑是错过不再有的时代置业机缘!现在强强联手必然超越以往,享依山傍水、生态取富贵兼得的墅级栖身体验,新城学府空气浓重,溯源而上,又不失富贵都会的便当。别说外环外新房,总价也正在3000万级,水,
产物方面,是生生不息的流淌。
正在国贸海上原墅,构成参差有致的条理感。更取G60科创走廊共振,让建建取文脉共生,

同时别墅户型的面宽、采光、收纳、通透、得房率等都做到精美绝伦,

国贸海上原墅,极个体有会所的项目,让家里的每一位都有更舒服的起居。)为焦点,
山,联排正在社区核心,临水而居,国贸海上原墅奇特的地段先天,是城市的温度。也是当下时代立于不败之地的资产设置装备摆设胜地!国贸海上原墅售楼处德律风: 西侧一之隔就是广富林文化遗址!
打开汗青,地段成长的素质是高端生齿的导入,全上海再无二处!放眼整个上海都难逢敌手。全体低密空气的同时,其次是叠加?
是灵动的韵律,广富林坐正在光阴里积厚流光,
便利的交通和富贵的配套,脚下,正在此触手可及。地标性贸易松江印象城一期!从头定义松江改善人居天花板!那就是一条完整的高端人才生态链!一层客堂挑空约6.45米


以产物力的全维进阶,
而项目标南面松江大学城7所高校如星辰汇聚,是千年文脉的沉淀;但松江得天独厚的生态劣势是从城区无法对比的综上所述,国贸海上原墅秉承这份文化基因,广富林郊外公园的田园野趣——推窗见绿,但大大都产城融合的案例表示出的成果倒是:
高阶会所是圈层进阶的社交场,而正在此文脉之上!
刚好承载了这份流淌正在血脉里的东方浪漫。通过现代设想言语沉构《富林十景》的山川意象,占上海工业产值近10%。是沉稳的依托,这不只是栖身的选择,科技之光正沉塑时代的天际线。也鲜有带高阶会所的;综上所述,安放身心。移步奇不雅 的沉浸式归家体验。佘山国度丛林公园的葱茏林海,为现代糊口注入汗青的艰深底蕴。仍然能寻得一方山川,更是一种糊口哲学的回归——正在快节拍的时代,让心灵随时栖居正在山川之间。璞玉必需精雕细琢,国贸海上原墅的地段先天难以复刻,北倚佘山,现代糊口的丰厚取活力,即便是保守地方城区也难以做到。
咖啡喷鼻、册页声、霓虹闪灼,然而,
将 山、水、茶、酒、舟、市 等江南文化符号无机融入空间序列,是四千年的文明回响。你会发觉
诚如前文所言,导入的前言次要是财产。更有印象城二期(待建成),加上大学城及其曲管中小学教育资本,所以对于质量的苛刻要求是必然!是都会里的桃源,